
產品介紹

金屬裝飾保溫板,年產量50萬m2。采用西南鋁3004、5052系列高強度鋁鎂錳合金防銹鋁板,或韓國項浦不銹鋼板、防火A級STP真空絕熱保溫板、美國DUPONP膠水、美國PPG 70%以上氟碳涂料、法國諾凡爾塞保護膜,為優良品質提供了足夠的保證!屬于國家建設部節能省地型建筑推廣應用技術項目,同時為《金屬飾面保溫板國家標準》受邀制定起草單位,并擁有自主開發知識產權。已被國內多家重點工程所采用。
產品特性
金屬裝飾保溫板外墻外保溫裝飾系統,具有防火A級、傳熱系數低、裝飾效果好、平整度好、經久耐用不易老化、產品自重輕、安全牢固、搬運安裝方便、使用成本低等優點。同時解決了以前膠粉聚苯顆粒、膨脹聚苯板薄抹灰外墻外保溫系統中出現的開裂、鼓包、脫落、施工復雜、翻新困難等問題。并且解決了以前鋁單板、鋁蜂窩板、鋁塑板、不銹鋼板等其他金屬幕墻,造價昂貴、施工復雜、易變形等問題。
生產工藝

防火新標準GB8624-2006和老標準GB8624-1997對比
|
不燃 |
A級(勻質材料) |
A1(老) |
|
A級(復合材料) |
A2(老) |
|
|
難燃 |
B級(新) |
B1(老) |
|
C級(新) |
||
|
可燃 |
D級(新) |
B2(老) |
|
E級(新) |
||
|
易燃 |
F級(新) |
B3(老) |
不同保溫板的導熱系數對比
|
項目 |
XPS |
RW |
PU |
STP |
EPS |
EPSG |
PVC |
|
導熱系數 |
≤0.03 |
≤0.048 |
≤0.024 |
≤0.006 |
≤0.041 |
≤0.041 |
≤0.04 |
|
防火 |
B級 |
A級 |
B級 |
A級 |
B級 |
A2~B1 |
B級 |
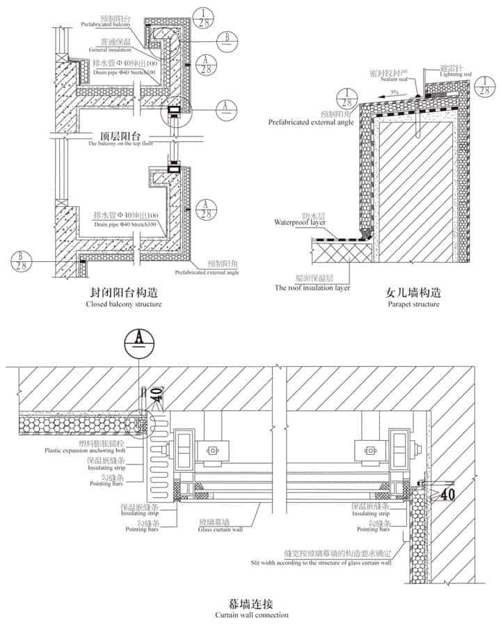
基本構造

安裝方法

技術參數


產品用途
用于大樓外墻、帷幕墻板、舊樓改造翻新、室內墻壁修



關于銘優
新聞中心
產品中心
客戶案例
在線留言
聯系我們














